Caratteristiche Principali
Descrizione
Nella marina leccese di Frigole, a pochi passi dalla spiaggia, StoneHause propone in vendita villa indipendente di nuova costruzione con ampio terreno di 240 mq. L’immobile sarà consegnato completamente rifinito con formula chiavi in mano.
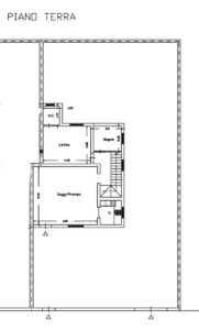
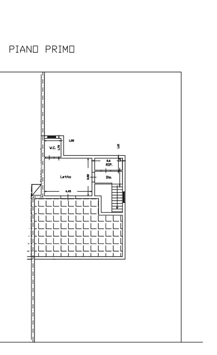
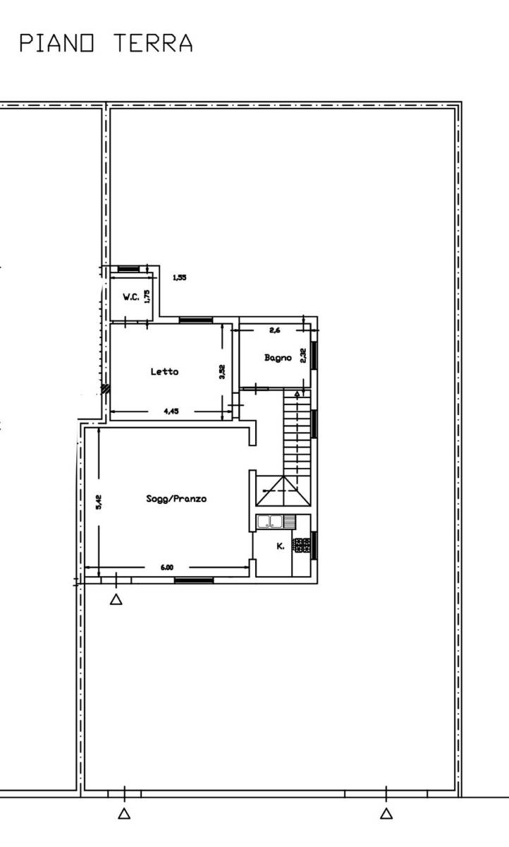
La soluzione si sviluppa su due livelli: al piano terra troviamo ampia zona soggiorno/pranzo, bagno e camera da letto con servizio ad uso esclusivo; al piano superiore troviamo una camera da letto matrimoniale con servizio e terrazzo di pertinenza di 45 mq. La superficie coperta complessiva è di 121 mq.
Le rifiniture saranno di alta qualità e garantiranno un’alta efficienza energetica.
I lavori di ristrutturazione comprenderanno: fornitura e messa in posa in opera degli impianti elettrici, idrici, fognanti e di riscaldamento con pompa di calore, predisposizione fotovoltaico, cappotto termico, finitura intonaci interni, infissi esterni in pvc con vetrocamera, porte interne tamburate e rivestite, pavimenti in gres in prima scelta, fornitura e posa in opera di sanitari filomuro e rubinetteria di fornitura italiana.
La presenza di due ville in costruzione nello stesso complesso rappresenta un’interessante opportunità: l’acquisto congiunto consente di unire esigenze abitative e investimento, permettendo di vivere in una soluzione e destinare l’altra a locazione.
StoneHause – Il nostro obiettivo è rendere piacevole la tua esperienza immobiliare!