Home / Immobili / Trilocale in 31, VIA ETTORE FIERAMOSCA, ugento Lecce

Trilocale in 31, VIA ETTORE FIERAMOSCA, ugento Lecce

31, VIA ETTORE FIERAMOSCA, (Lecce)

Rif. CRM: 65920

€ 110.000
In vendita

Caratteristiche Principali

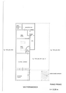
Superficie 76 mq
Locali 3
Camere 2
Bagni 2

Descrizione

A pochi minuti a piedi dal lungomare di Lido Marini, StoneHause propone in vendita appartamento sito al primo piano ristrutturato di recente.

L’immobile si estende su una superficie di circa 76 mq, suddivisi in: ampio soggiorno con angolo cottura, due camere da letto, una matrimoniale e una doppia, e un bagno finestrato con doccia.
L’appartamento dispone di condizionatori in tutti gli ambienti, di un balcone accessibile dalla camera doppia, sul quale troviamo un secondo bagno utilizzato al momento come vano lavanderia, e di un terrazzo a livello antistante l’accesso dell’immobile, il quale è perfetto per essere attrezzato come zona pranzo esterna.

L’immobile si presta ottimamente per essere utilizzato come investimento, data la posizione strategica vicino al mare, oppure come residenza personale estiva.

La soluzione si cede arredata.

Se vuoi vendere il tuo immobile per acquistarne un altro, contattaci per una valutazione gratuita. Avrai una basa con la quale partire per la ricerca della tua nuova casa! Il nostro obiettivo è rendere piacevole la tua esperienza immobiliare!

Dettagli Immobile

Tipologia:
Trilocale
Condizioni:
Ottimo

Distasnze

Planimetrie

Posizione